1637-1651 Stanford

Overview:

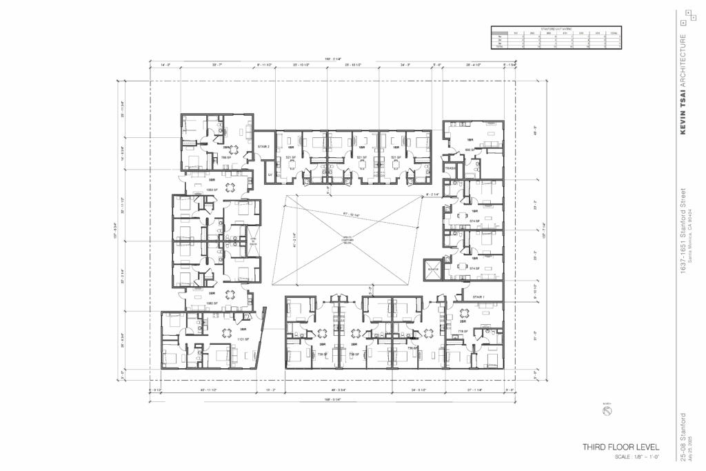
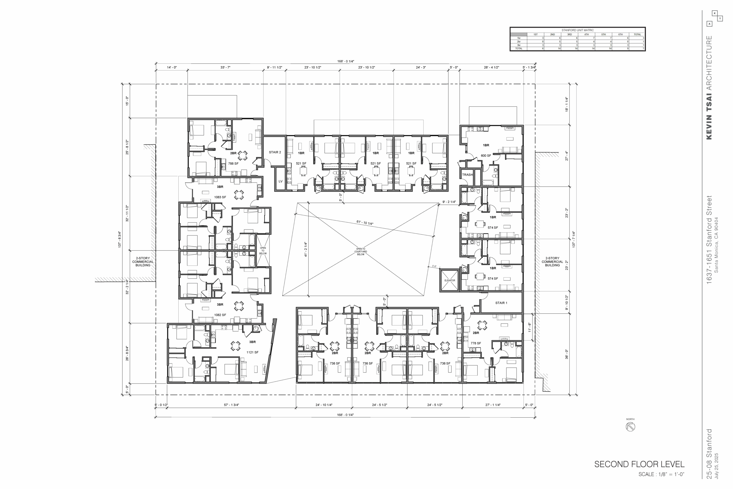
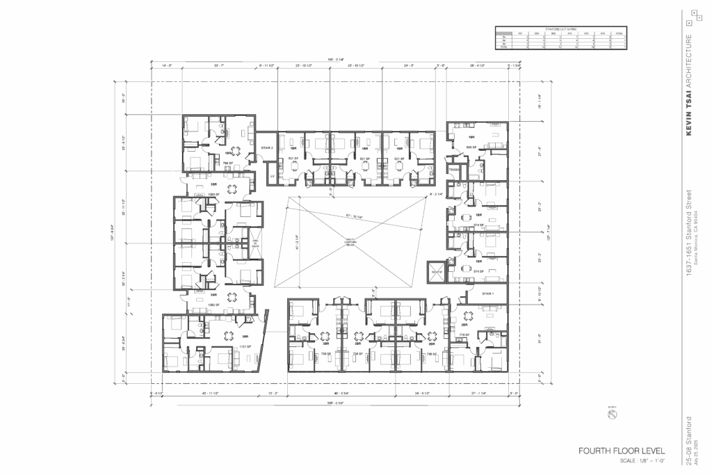
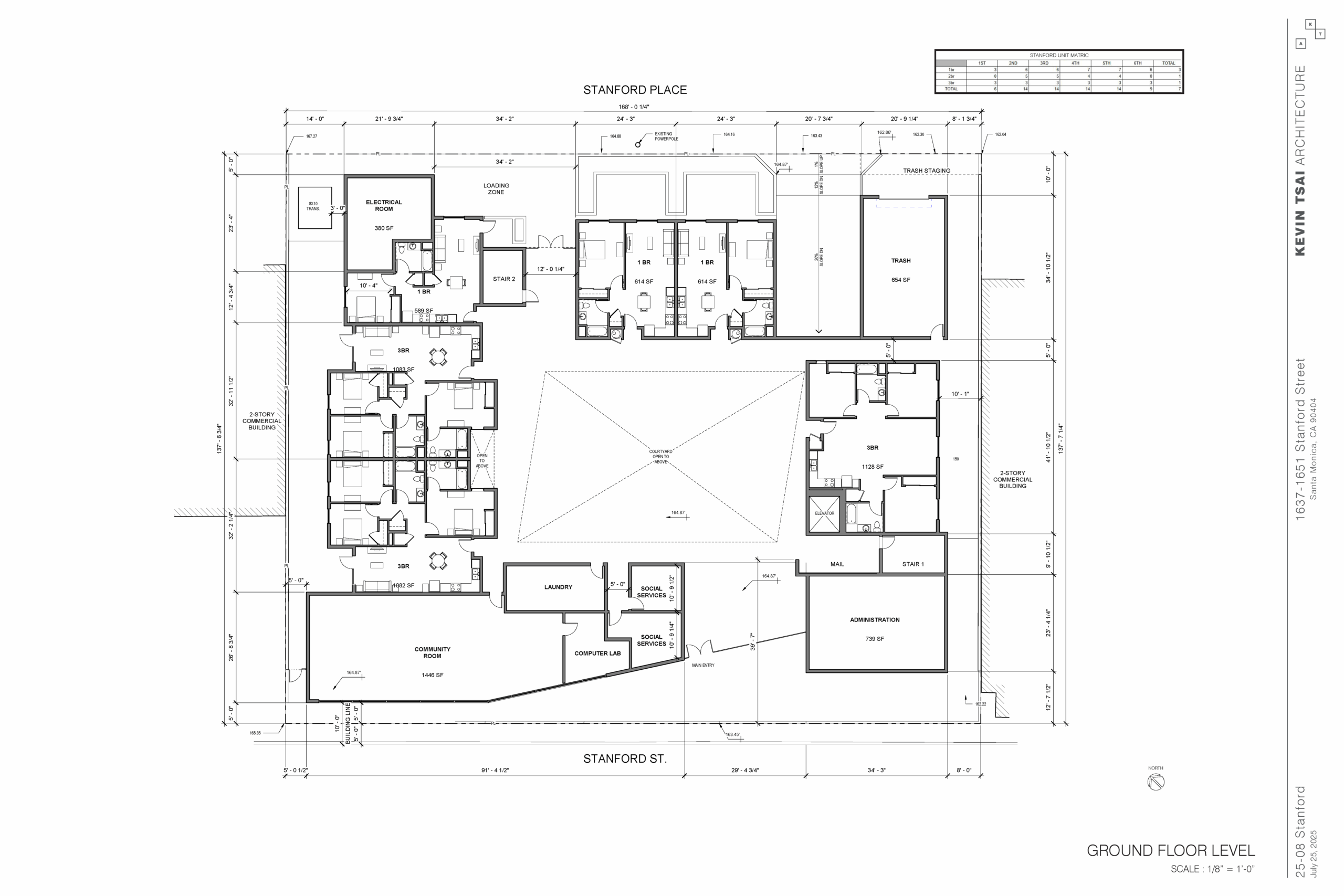
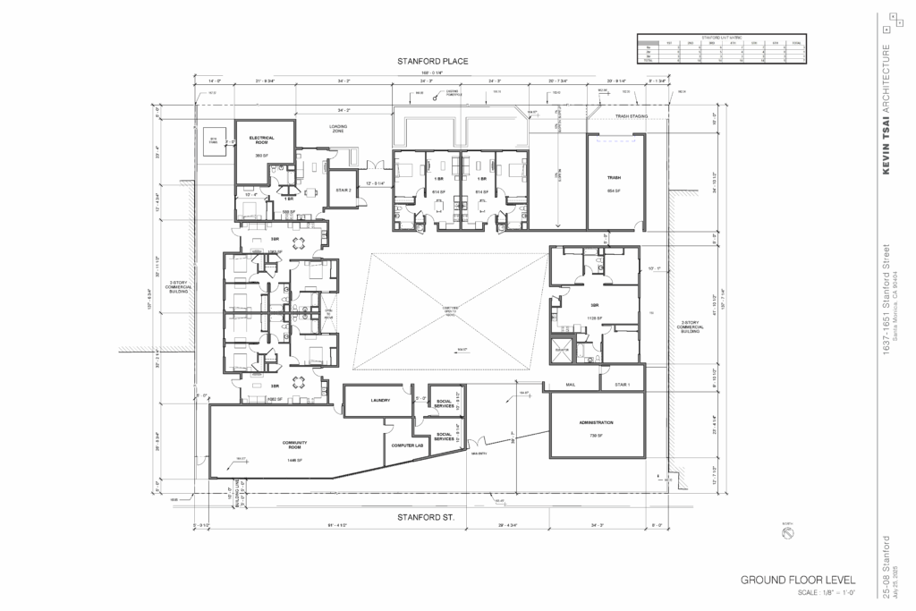
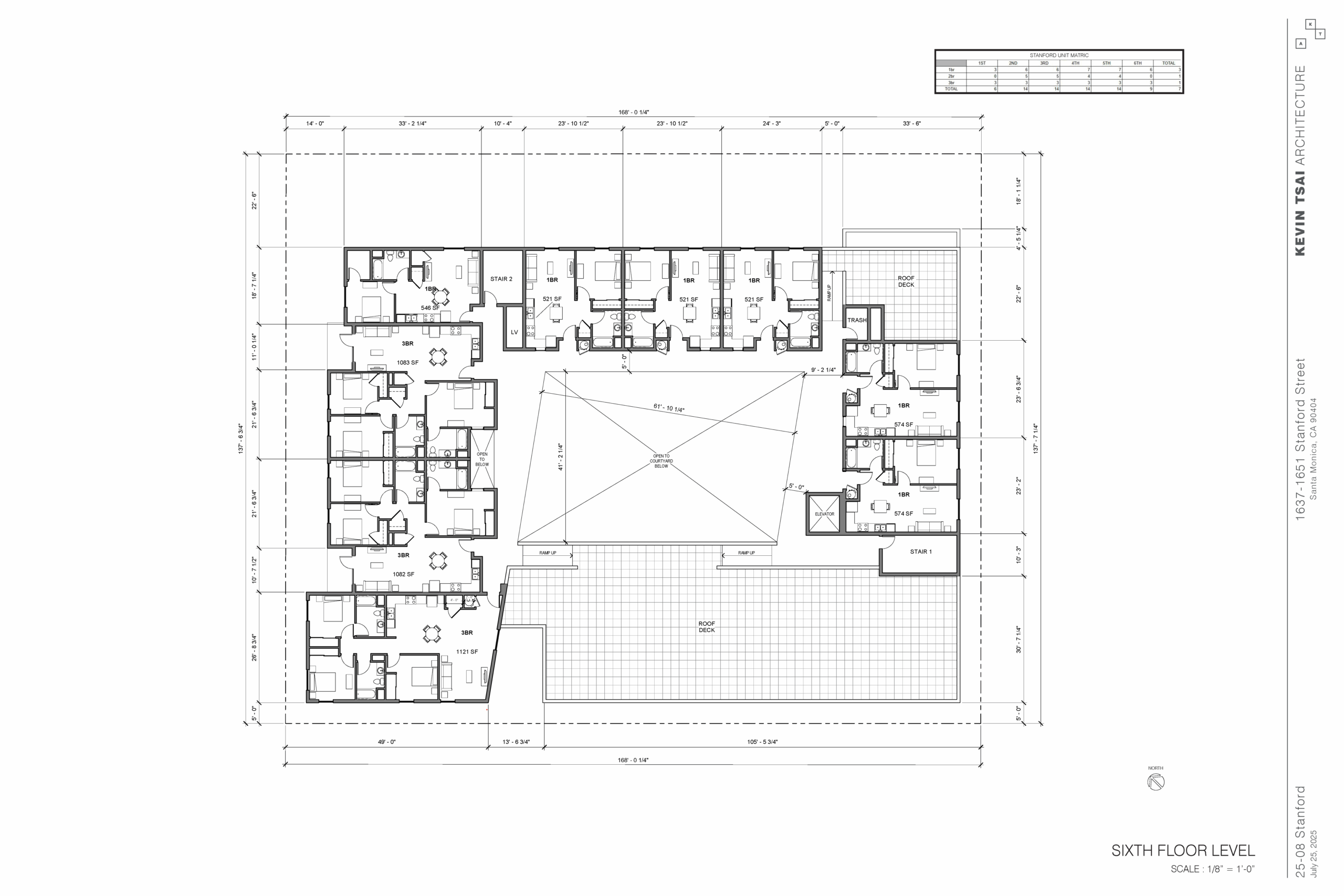
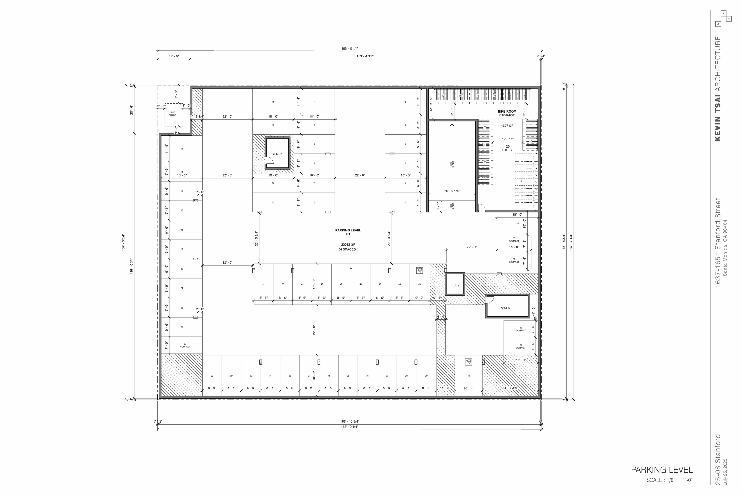
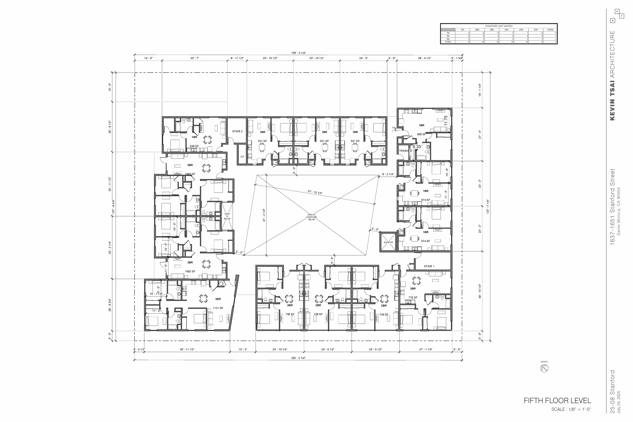
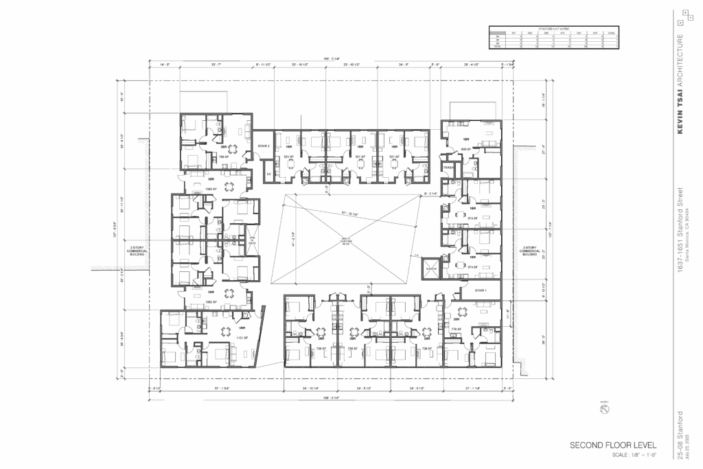
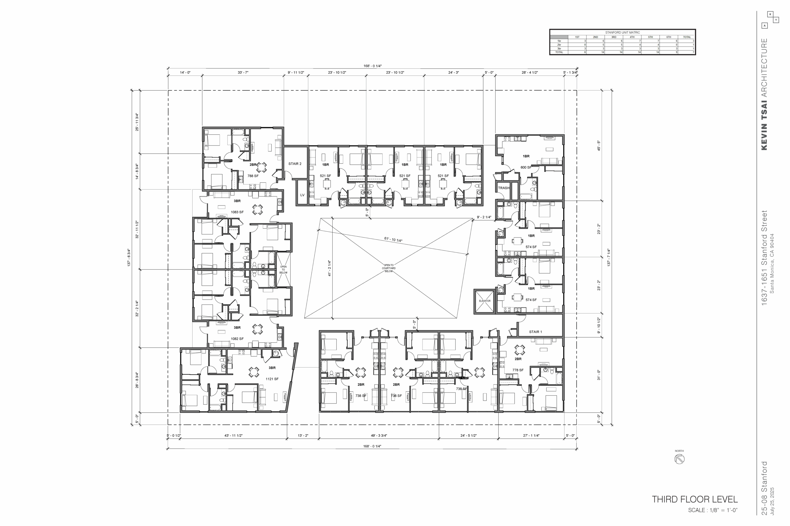
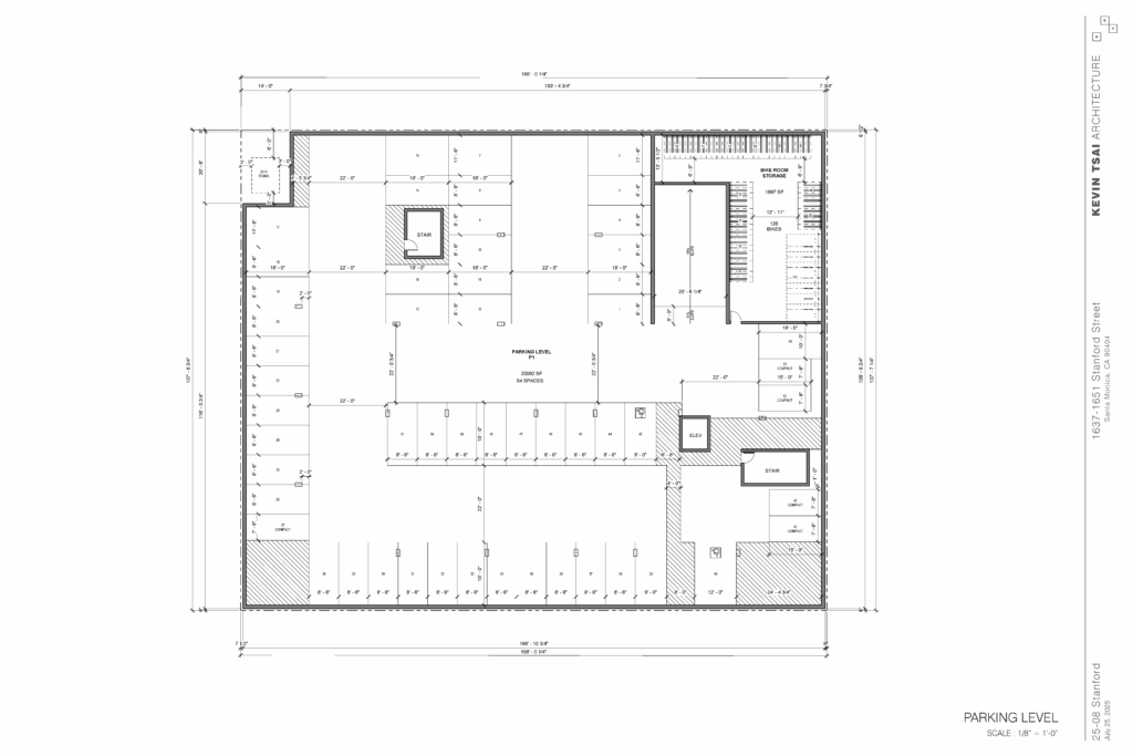
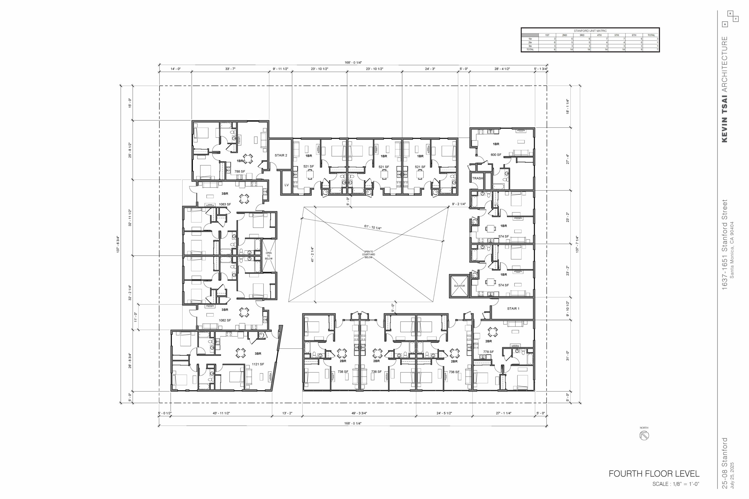
“Stanford,” the proposed project, represents a 71-unit 100% affordable multifamily community that will target large family households earning between 30%-80% AMI. There will be 35 one-bedrooms, 18 two-bedrooms (including 1 manager’s unit), and 18 three-bedrooms. The project spans approximately 66,900 sf of residential and amenity space, with a maximum height of six stories. Stanford will include a courtyard, community room, tot-lot, laundry room, bike storage room, 54 parking spaces, edible garden, roof deck, and offices for property management and residential services.

Meeting Date: 

THURSDAY, AUGUST 14, 2O25

6:00-7:00pm

Zoom Meeting Location: 

https://us02web.zoom.us/j/84013565334

If you have a question, please email: [email protected]